︎
kent
m
johnson
jr
project index
book club
9 current interests
about
contact
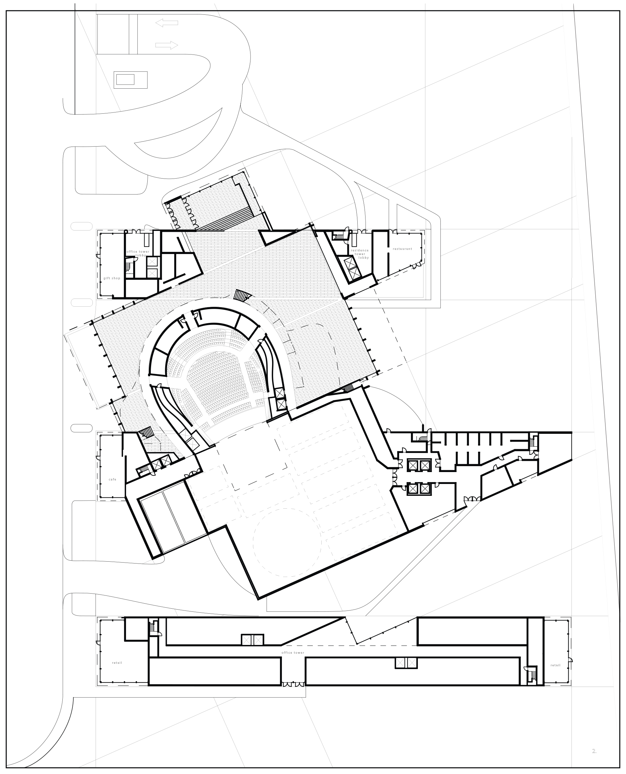
new Chicago opera
2013